Nivel 1
ELEMENTOS: PIEZAS, PARTES Y FUNDAMENTOS
Concebimos la práctica arquitectónica como un método de invención, donde el proceso proyectual se define a partir del par dialéctico: materiales-manipulación. Entendiendo los primeros como: tipos de distribución de usos, dispositivos constructivos, dispositivos estructurales, etc.; y lo segundo como todas aquellas operaciones realizadas a partir de estos.
Estudiamos los elementos fundamentales de la arquitectura, incorporándolos como material de proyecto, a partir de decisiones justificadas (cubiertas, envolventes, particiones, estructuras y suelos) formulamos estrategias proyectuales básicas que posibiliten un desarrollo arquitectónico creativo y consistente.
1C. Vivienda Individual + trabajo: vivienda en lote propio asociada a uso productivo. Tejido barrial, ciudad jardín y rururbano. La matanza, pcia. de Buenos Aires.
2C. Centro Productivo comunitario: mercado popular, en vinculación con un programa mixto productivo. Ciudad evita, la matanza.
Autores:
José Avedaño / Loana Liste / Juan Pablo Nuño / Sophia Vieira
Docentes:
Martín Encabo, Sergio Gagliano.
Nivel 2
consigna:
tejido. reglas – prescripciones. exploración configurativa. gravedad – ligereza. interpretación de necesidades y resolución de problemas del hábitat. utilización de materiales constructivos locales. prácticas habitativas: escenarios de lo íntimo, lo grupal y lo colectivo. tejido barrial como posibilidad simultánea y no excluyente de distinción y continuidad. lo igual y lo distinto.
promover el ejercicio de la práctica proyectual e introducir estrategias de agrupamiento y condiciones de seriación distintiva.
generar el manejo de reglas y prescripciones a partir de lógicas configurativas.
indagar en el proyectar como conocimiento multirreferencial y articulación sinérgica entre su configuración, contextualización y disposición.
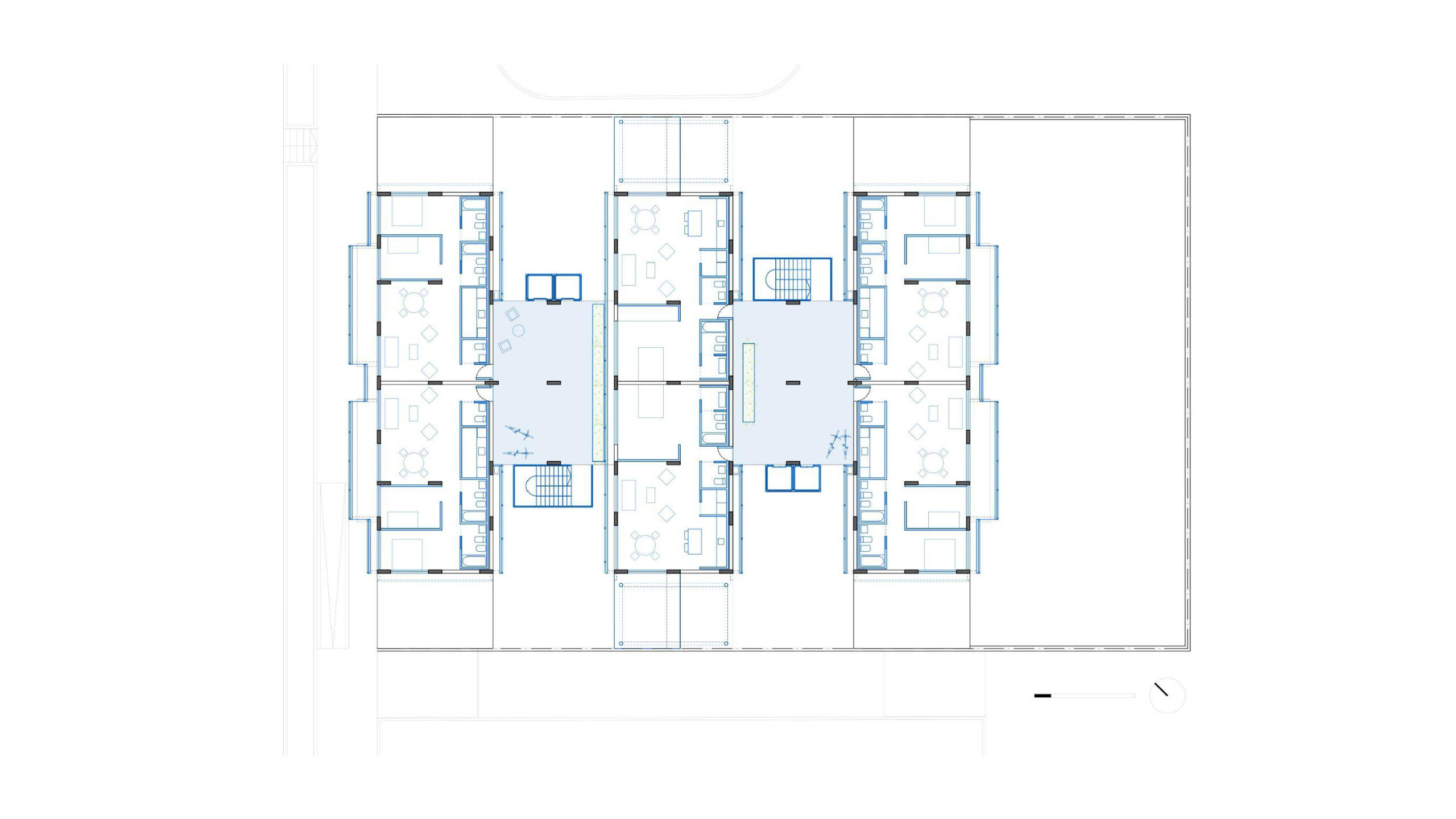
1C. viviendas compuestas (tejido. vivienda agrupada). la matanza, pcia. de buenos aires
2C. centro local (unidades de gestión vecinal). la matanza, pcia.de buenos aires
autores:
- ayelen valle + nerina bustos
- agustina bogosavljevich + brenda barrios
- felipe vilas + ivanna esposito
- nicolás pirollo + agustin vidal
- mia odella + mariana zayas
- juan olivares + juan bareiro
docentes:
diego aceto, fernando vera, rodrigo fernandez buffa, daiana benitez, fernando mosquera
Nivel 3
consigna:
(apropiar – elaborar) generación de estrategias proyectuales tipificadas y sus constelaciones en esquicios de significado contextual, disposición programática, y configuración material con énfasis en su dimensión tectónica exigida por el jury con MP.
1C. habitación. Rehabilitación del conjunto 20 de junio, isidro casanova, la matanza.
2C. casa comunal. (centro de día, hábitat no doméstico, paisaje). Ciudad evita, la matanza.
equipamiento. es un espacio de cuidados para adultos mayores. este equipamiento comunitario está destinado a esa población con acceso controlado e independiente del resto del programa.
habitación no doméstica. unidades residenciales para adultos mayores autovalentes. las unidades tienen escala grupal (áreas compartidas) y áreas individuales (unidades y sus patios/terrazas)
paisaje. llamamos así al área donde se ubica el edificio, siendo la escala colectiva del proyecto, accesible a toda la comunidad abiertamente y programado como un parque barrial.
autores:
- gomez, camila
- perez, rafael
- gomez, camila
- gomez, camila
- estudiantes 2024
- perez, rafael
- gomez, camila
docentes:
matias torres, isis litvan, guillermo gallardo, guillermo colque
Nivel 4
consigna:
introducir estrategias relacionales entre ambientes e infraestructuras, problematizando la relación decisional de autonomía / heteronomía entre la escala territorial y arquitectónica: arquitectura “urbana” o de “la gran escala”
1C. Proyecto de rehabilitación eje ferrocarril Haedo-Temperley
2C. Condensador de cultura, esparcimiento, socialización y producción.
docentes:
santiago bozzola, daniela bravo, caterina spilimbergo, sofia mesa, ignacio floran
Proyecto Urbano
consigna:
Se propone realizar el proyecto de un Campus Universitario para las Disciplinas del Proyecto y la Producción sobre la línea infraestructural de la Autopista Presidente Juan Domingo Perón en su delimitación entre la Ruta 3 y el Río Matanza Riachuelo, como una formulación modélica para un desarrollo urbano sustentable y resiliente, contemporáneo de los nuevos modos de producción industrial.
Campus Universitario y Productivo, Sustentable y Resiliente – La Matanza –
Autores:
Arana – Larrasquitu – Viola
Fiscella – Nellem
Kiss – Vallejos
Mariet Leston-Colombo Baratta
Mariet Leston-Colombo Baratta
Dominguez – Spaccarotella
Docentes:
Matías Tozzini, Leandro Costa, Omar Suarez Van Kerckhoven, Juliana Mansilla, Ignacio Fernández
Proyecto Arquitectónico
consigna:
Se propone realizar un proyecto relativo a la educación universitaria de las disciplinas proyectuales en el ámbito de la Autopista Presidente Juan Domingo Perón (La Matanza), partiendo de lo trabajado en Proyecto Urbano, centrándose ahora en el edificio universitario a desarrollar, especificando su adecuación al contexto, así como las determinaciones técnicas, morfológicas y de los modos de habitar.
Edificio universitario con mixtura programática – La Matanza –
Autores:
Colombo Baratta, Valentín
Colombo Baratta, Valentín
Gentile, Martín Gabriel
Fiscella Ignacio
Serafini, Sebastián Ignacio
Grden Agostina
Docentes:
Matías Tozzini, Leandro Costa, Omar Suarez Van Kerckhoven, Juliana Mansilla, Ignacio Fernández






































